인수봉 숲길마을 주민공동이용시설
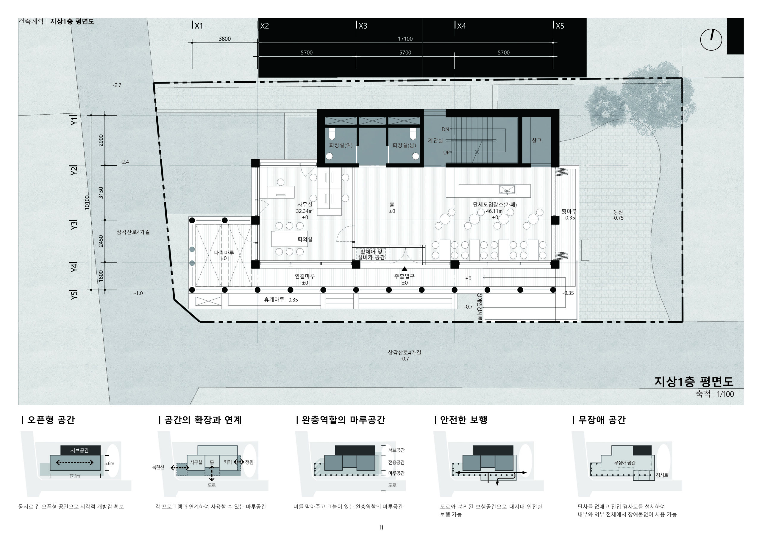
주민공동이용시설은 개방적으로 모든 주민들이 찾을 수 있는 공간이어야 한다. 대지의 남측에는 좁지만 돌담이 수목이 정겨운 길이 있었다. 이 길에 면해 열린 공간을 만들면 되었지만 마냥 열어
놓기에는 내부 사용에 불안감을 느낄 수 있을 것 같았다.
한국 전통공간을 재해석한 마루공간은 너그러운 그늘 공간을 만들어 주어 내부공간과 연계된 쉼터가 되며 내부공간은 마루공간으로부터 한 겹 보호되어 있어 아늑한 공간이 된다.
또한 길과 나란히 놓인 마루공간은 길의 보행 환경을 안전하게 돕는다.
마루공간
마루공간은 만만한 높이의 열주로 사람들을 편안하게 인도한다.
지붕을 통해 만들어지는 그늘로 내부의 공간은 아늑해지며, 주민들은 편안하게 마루에
담기는 외부 풍경을 즐긴다.
놓기에는 내부 사용에 불안감을 느낄 수 있을 것 같았다.
한국 전통공간을 재해석한 마루공간은 너그러운 그늘 공간을 만들어 주어 내부공간과 연계된 쉼터가 되며 내부공간은 마루공간으로부터 한 겹 보호되어 있어 아늑한 공간이 된다.
또한 길과 나란히 놓인 마루공간은 길의 보행 환경을 안전하게 돕는다.
마루공간
마루공간은 만만한 높이의 열주로 사람들을 편안하게 인도한다.
지붕을 통해 만들어지는 그늘로 내부의 공간은 아늑해지며, 주민들은 편안하게 마루에
담기는 외부 풍경을 즐긴다.













