제주 자치지원센터
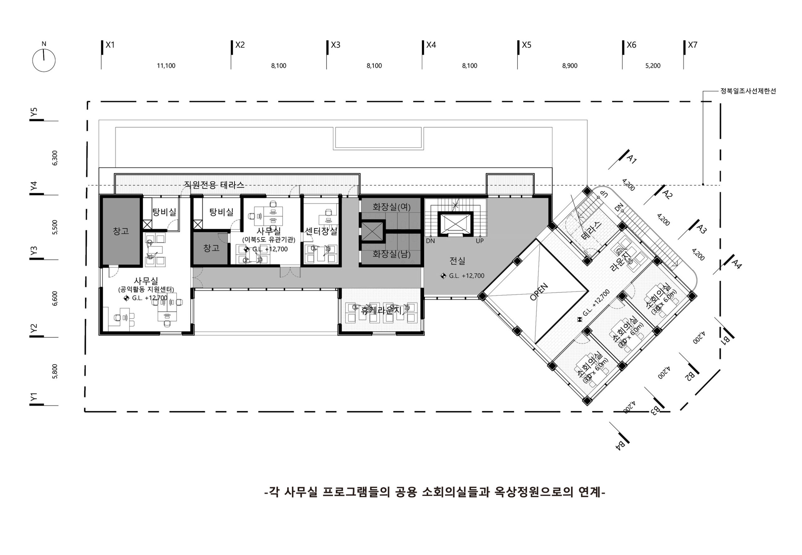
대상지는 남쪽과 동쪽 각각 6m, 8m도로를 면하고 있으며, 북쪽과 남쪽, 서쪽으로는 주거시설이 둘러쌓고 있다. 주변의 상황을 고려하여 건축물의 가시성을 높이고 사용자들의 접근을 용이하게 하기 위해 대지의 남쪽에 위치한 소나무와 녹나무를 보전하면서 건축계획을 북쪽으로 이동시키고, 두 도로가 만나는 모퉁이 위치에 45° 회전한 입방체의 건축물을 계획하였다.
45°로 회전한 입방체는 주 출입구이자 공용공간으로 사용되며, 건축물로부터 각기 다른 방향으로 유입되는 사람들을 공평하게 맞이한다. 이러한 설계는 대지의 좁은 이면도로에서도 건축물의 가시성을 높이는 효과적인 방법이면서도 유입되는 사람들이 자연스럽게 대지 내부로 유입될 수 있는 흐름을 조성한다.
뿐만 아니라, 입방체가 회전하여 만들어진 공간에 조성되는 전면마당은 동쪽에 펼쳐진 가로수와 연계되어 풍요로운 쉼터를 제공한다. 이러한 디자인으로 환경과 자연을 고려하여 주거 지역에서 편안하고 아름다운 환경을 제공하고자 한다.
1.공공성
대상지의 남동측 인접도로에 주민생활권역, 선덕로와 문송길의 세 방향에서의 보행자와 유입이 확인되며 이로부터 공공성이 높은 부분과 내밀함이 느껴지는 영역의 차이를 구분된다.
2.보존수목 이격
기존 대지에 존재하던 수목들은 상록수로, 대지의 풍성한 녹지공간과 그늘을 형성할 수 있는 중요한 요소로 존재한다. 이를 적극적으로 설계에 반영하기 위하여 2M이격거리에서 6M를 이격하여 건축물을 배치한다.
3.공공의 입방체
공공성이 집중되는 지점에 배치된 공공의 프로그램들은 45도 회전하여 세 방향의 도시의 맥락을 받아주는 공공의 입방체가 되어 동측에 배치된다. 반대로 서측의 사무실의 공간을 지상에서 분리시키고 보존수목을 적극적으로 활용하여 내밀함을 강화한다.
4.녹지의 확장
수려한 가로수를 향해 회전한 공공의 입방체는 비워진 지상층의 오픈스페이스를 연계하여 연속적인 옥외 테라스와 북카페, 라운지, 소회의실, 옥상정원으로 이어지는 공공의 프로그램들을 풍요롭게 한다.
45°로 회전한 입방체는 주 출입구이자 공용공간으로 사용되며, 건축물로부터 각기 다른 방향으로 유입되는 사람들을 공평하게 맞이한다. 이러한 설계는 대지의 좁은 이면도로에서도 건축물의 가시성을 높이는 효과적인 방법이면서도 유입되는 사람들이 자연스럽게 대지 내부로 유입될 수 있는 흐름을 조성한다.
뿐만 아니라, 입방체가 회전하여 만들어진 공간에 조성되는 전면마당은 동쪽에 펼쳐진 가로수와 연계되어 풍요로운 쉼터를 제공한다. 이러한 디자인으로 환경과 자연을 고려하여 주거 지역에서 편안하고 아름다운 환경을 제공하고자 한다.
1.공공성
대상지의 남동측 인접도로에 주민생활권역, 선덕로와 문송길의 세 방향에서의 보행자와 유입이 확인되며 이로부터 공공성이 높은 부분과 내밀함이 느껴지는 영역의 차이를 구분된다.
2.보존수목 이격
기존 대지에 존재하던 수목들은 상록수로, 대지의 풍성한 녹지공간과 그늘을 형성할 수 있는 중요한 요소로 존재한다. 이를 적극적으로 설계에 반영하기 위하여 2M이격거리에서 6M를 이격하여 건축물을 배치한다.
3.공공의 입방체
공공성이 집중되는 지점에 배치된 공공의 프로그램들은 45도 회전하여 세 방향의 도시의 맥락을 받아주는 공공의 입방체가 되어 동측에 배치된다. 반대로 서측의 사무실의 공간을 지상에서 분리시키고 보존수목을 적극적으로 활용하여 내밀함을 강화한다.
4.녹지의 확장
수려한 가로수를 향해 회전한 공공의 입방체는 비워진 지상층의 오픈스페이스를 연계하여 연속적인 옥외 테라스와 북카페, 라운지, 소회의실, 옥상정원으로 이어지는 공공의 프로그램들을 풍요롭게 한다.



























